Das Prinzip scan-2-plan

Mobile Mapping ist der Prozess zur Erfassung raumbezogener Daten von einer mobilen Trägerplattform. Sie ermöglicht mit einer Kombination aus Positionierungs- und Mess-Sensorik eine leistungsfähige 3D-Datenerfassung. 

Das Ergebnis des Mobile Mapping sind GIS-Daten, Punktwolken oder digitale Karten sowie 360-Grad Panoramafotos. Aus den gewonnenen Daten erstellen wir 2D-Pläne und 3D-Modelle für Ihr Vorhaben.

Zum Einsatz kommen unter anderem Highend Technologie von NavVis GmbH aus München und der Z+F FlexScan® 22 aus dem Hause Zoller + Fröhlich. Die Datenerfassung und Datenmodellierung übernimmt die BKR Ingenieurbüro GmbH aus Wackersdorf bzw. Weinheim.

Die Vorteile von Mobile Mapping liegen klar auf der Hand: 

  • Hohe Geschwindigkeit der Datenerfassung, auch im laufenden Betrieb
  • Absolute Vollständigkeit, da die erfassten Objekte beim Mobile Mapping in Echtzeit angezeigt werden
  • Hohe Genauigkeit
  • Flexibilität durch Trägersystem
  • 360 Grad Panoramafotos im NavVis IVION Core oder der ATIS Cloud (Street View für Räume)

Grundlagenermittlung & Beratung

Wir beraten Sie gerne unter welchen Umständen mobiles 3D-Laserscanning das wirtschaftlichste Verfahren ist. Je nach Anforderungen lässt sich mobiles auch mit stationärem Scanning und Drohnenvermessung kombinieren. Wir finden das beste Verfahren mit Ihnen.

Architektur

Bauen im Bestand hat Zukunft. Aber oftmals fehlen vollständige und genaue Bestandspläne. Genau hier kommen wir ins Spiel...

Öffentliche Verwaltung

Leerstände, Umnutzungen oder Sanierungsvor-haben lassen sich wirtschaftlicher planen mit einer vernünftigen Datengrundlage. Diskussionen und Beteiligungen können visuell begleitet wer-den.

Infrastruktur

Öffentliche Räume mit öffentlicher Infrastruktur bergen eine Unmenge an Daten. Verschaffen Sie sich eine Übersicht mit IVION.

Industrie

Vermessung im laufenden Betrieb, CAD-Doku-mentation oder virtuelle Besucherführung. Punkt-wolken und Panoramafotos sind dafür beste Grundlagen.

Bestandserfassung

Vermessungsingenieure und -techniker scannen das Objekt und bereiten die Daten für die Weiterverarbeitung hausintern bzw. für den Kunden vor.

Mobile Mapping

Die Bewegungsfreiheit ermöglicht eine voll-ständige Erfassung aller Objekte. Dadurch entstehen keine "blinden Flecken" in der Punkt-wolke.

Technik

Der Z+F Flexscan 22 und das  NavVis VLX 2.0 sind tragbare, mobile Mappingsysteme, mit denen Laserscanprofis qualitativ hochwertige Scans von komplexen Gebäude und Baustellen aufnehmen können.

Lösungen: Pläne, Modelle & virtuelle Umgebung

Die BKR-Modellierer erstellen auf Wunsch 2D-Pläne und 3D-Modelle ganz nach den Anforderungen des Kunden.

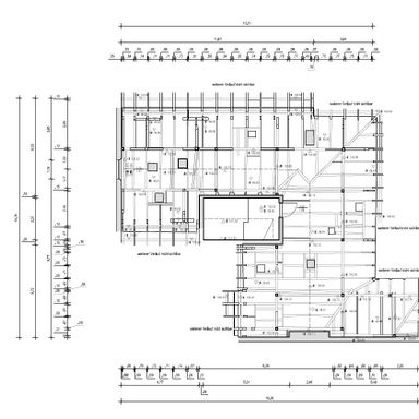
2D-Pläne

Verformungsgerechte Darstellung von Grund-rissen, Ansichten und Schnitten.

3D-Modelle

3-dimensionale Darstellung von Gebäuden in allen gängigen CAD-Formaten.

Ortho-Pläne

Orthogonale, hybride Ansichten und Schnitte mit dem Extra an Informationsgehalt.

Web-Oberfläche

Via Web-Account NavVis IVION Core können sämtliche Daten eigenständig verwaltet, bearbeitet, geteilt und heruntergeladen werden. Wiederholte Anfahrten zum Objekt werden überflüssig.

INSPIRIERT?

© Thomas Kuhnt. Alle Rechte vorbehalten.

Wir benötigen Ihre Zustimmung zum Laden der Übersetzungen

Wir nutzen einen Drittanbieter-Service, um den Inhalt der Website zu übersetzen, der möglicherweise Daten über Ihre Aktivitäten sammelt. Bitte prüfen Sie die Details und akzeptieren Sie den Dienst, um die Übersetzungen zu sehen.